Mayo 28, 2025
Durante el período 2024–2025, Sistemas llevó a cabo con éxito la provisión de un Shelter Técnico a medida en la planta Tratayén de la Transportadora de Gas del Norte (TGN), ubicada en la provincia de Neuquén. La obra se desarrolló bajo especificaciones técnicas precisas, respondiendo a los requerimientos operativos y normativos del cliente en un entorno de alta criticidad energética.

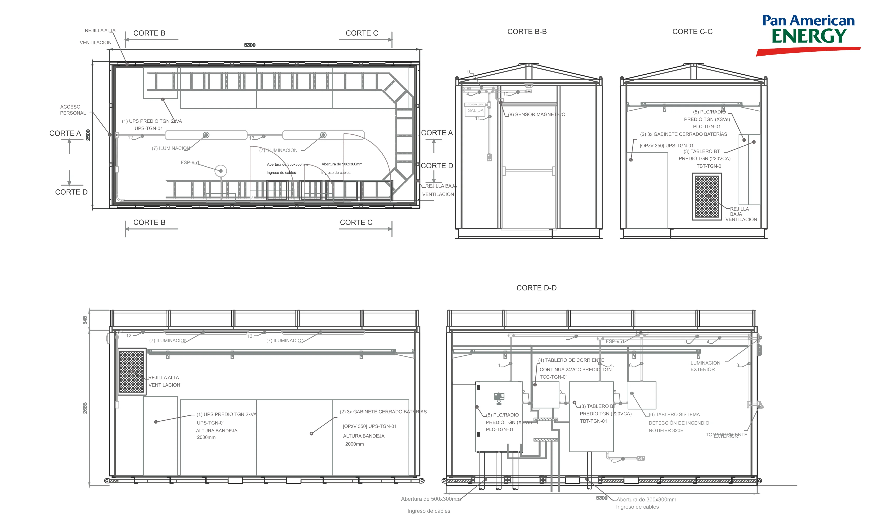
El shelter, de 5,3 metros de largo, fue diseñado y equipado para albergar sistemas eléctricos, de respaldo energético y de control, integrando tecnología de última generación para garantizar continuidad operativa y seguridad.
Entre los principales elementos provistos, se destacan:
• UPS Predio TGN 2 kVA (UPS-TGN-01), que asegura el respaldo de energía frente a eventuales cortes del suministro.
• Tres gabinetes cerrados para baterías con tecnología OPzV 350, asociados al sistema de UPS, ofreciendo autonomía y fiabilidad en el almacenamiento energético.
• Tablero de Baja Tensión (220 VCA), identificado como TBT-TGN-01, encargado de la distribución eléctrica interna del predio.
• Tablero de Corriente Continua 24 VCC, referencia TCC-TGN-01, esencial para alimentar sistemas de control y telecomunicaciones.
• Unidad PLC/RADIO (XSVs), bajo la denominación PLC-TGN-01, destinada al control automatizado y a las comunicaciones internas del predio.
• Sistema de detección de incendio Notifier 320E, integrado a un tablero exclusivo, para una respuesta temprana y segura ante incidentes.
• Sistema de iluminación interior y exterior, pensado para facilitar tanto las operaciones como las tareas de mantenimiento en todo momento.
• Sensor magnético, orientado al control de accesos y monitoreo de seguridad física.

Este proyecto permitió reforzar la infraestructura operativa de la planta Tratayén, una instalación clave dentro del esquema de transporte de gas en la región. La solución implementada por Sistemas combinó ingeniería de precisión, cumplimiento normativo y confiabilidad tecnológica, reafirmando su posición como proveedor estratégico en proyectos energéticos de alta exigencia.
Te ayudamos a optimizar tu consumo energético!
No dudes en comunicarte con nosotros, nuestro equipo está listo para asesorarte y brindarte la mejor opción para tu proyecto.
(+54) 11 3517 3689
ventas@sistemasenergeticos.com.ar
O escribinos a través de la sección Contacto