Menu Animado
Imagen noticia
Icono calendario

Julio 12, 2021

Categoría: Obras

Telecom: Shelters especializados para Grupo Electrógeno en Tierra del Fuego

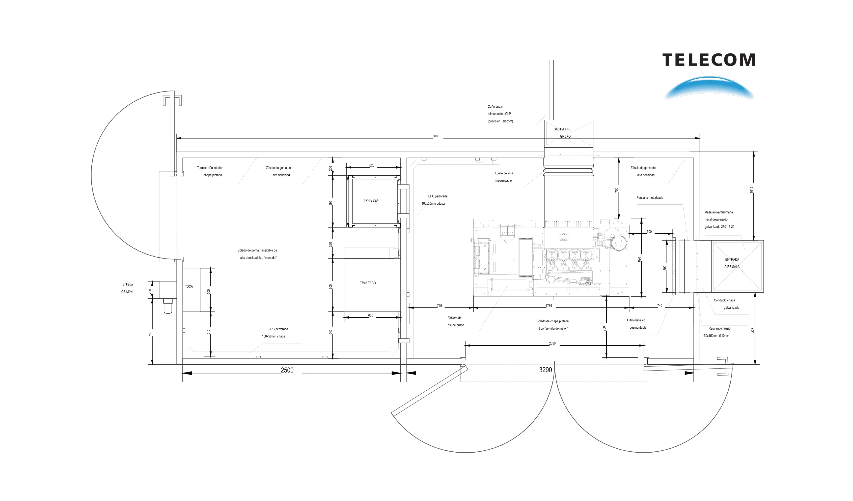
Sistemas concretó la provisión de tres shelters técnicos para Telecom, diseñados con especificaciones de alto rendimiento y criterios especiales de aislamiento y protección ambiental, considerando las condiciones climáticas exigentes de la región. Cada shelter, de 6 metros de largo, fue diseñado bajo un esquema de doble sala funcional, separando la operación del grupo electrógeno de los sistemas de energía y telecomunicaciones, para una operación más segura, eficiente y confiable.

Infraestructura energética y térmica

El equipamiento incluyó la instalación de un Grupo Electrógeno, junto con su correspondiente caja de pase para GE móvil, permitiendo acometida externa ante contingencias. Para asegurar la eficiencia térmica y acústica del sistema, se incorporaron elementos especializados:

• Salida de aire caliente, caño de escape con silenciador, y aislaciones térmicas compuestas por manta cerámica 1” de 64 kg/m³, enchaquetado de aluminio y placa de perlita de 3 mm en los pases de muro.

• Remates tipo “H” a los cuatro vientos, pensados para resistir condiciones de viento patagónico.

• Tacos antivibratorios, contribuyendo a la protección del equipamiento ante las vibraciones generadas por el generador.

Seguridad y ventilación

En cuanto a la protección física, cada shelter fue equipado con rejas anti-intrusión, malla metálica anti-alimañas (250-16-20), y conductos galvanizados con filtros metálicos desmontables, sumado a persianas motorizadas con retorno a resorte para una correcta ventilación pasiva. La seguridad activa fue reforzada con matafuegos tipo ABC y sensores de puerta abierta, garantizando respuesta ante intrusiones o emergencias.

Sistema energético integrado

Los shelters fueron configurados con soluciones energéticas provistas tanto por Sistemas como por TECO, incluyendo:

• TPH SESA, compuesto por rack abierto, seis rectificadores de 3 kW, inversor de 2 kW, pantalla táctil de gestión, y cuatro baterías de litio de 48V / 150 Ah.

• TP48, TDCA e intercambiador de calor 48 Vcc, todos provistos por TECO, completaron el sistema para una operación energética autónoma, confiable y fácilmente gestionable.

Además, se contempló iluminación estanca con tubos LED, tomas de servicio 220 Vca, y pasamuros con 4 boots de 100 mm, previendo conductores de alta capacidad.

Este desarrollo en Tierra del Fuego reafirma la capacidad de Sistemas de adaptarse a los requerimientos más exigentes del territorio nacional, entregando soluciones integrales de infraestructura energética y de telecomunicaciones, listas para operar en condiciones extremas.

¿Necesitás asesoramiento?

Te ayudamos a optimizar tu consumo energético!
No dudes en comunicarte con nosotros, nuestro equipo está listo para asesorarte y brindarte la mejor opción para tu proyecto.

WhatsApp

(+54) 11 3517 3689

Email

ventas@sistemasenergeticos.com.ar

O escribinos a través de la sección Contacto